Sanchez de Loria y Rondeau 1400 | BTS2160

FICHA

  • Producto Depósito
  • Operación Alquiler
  • Barrio Parque Patricios
  • Estado A refaccionar
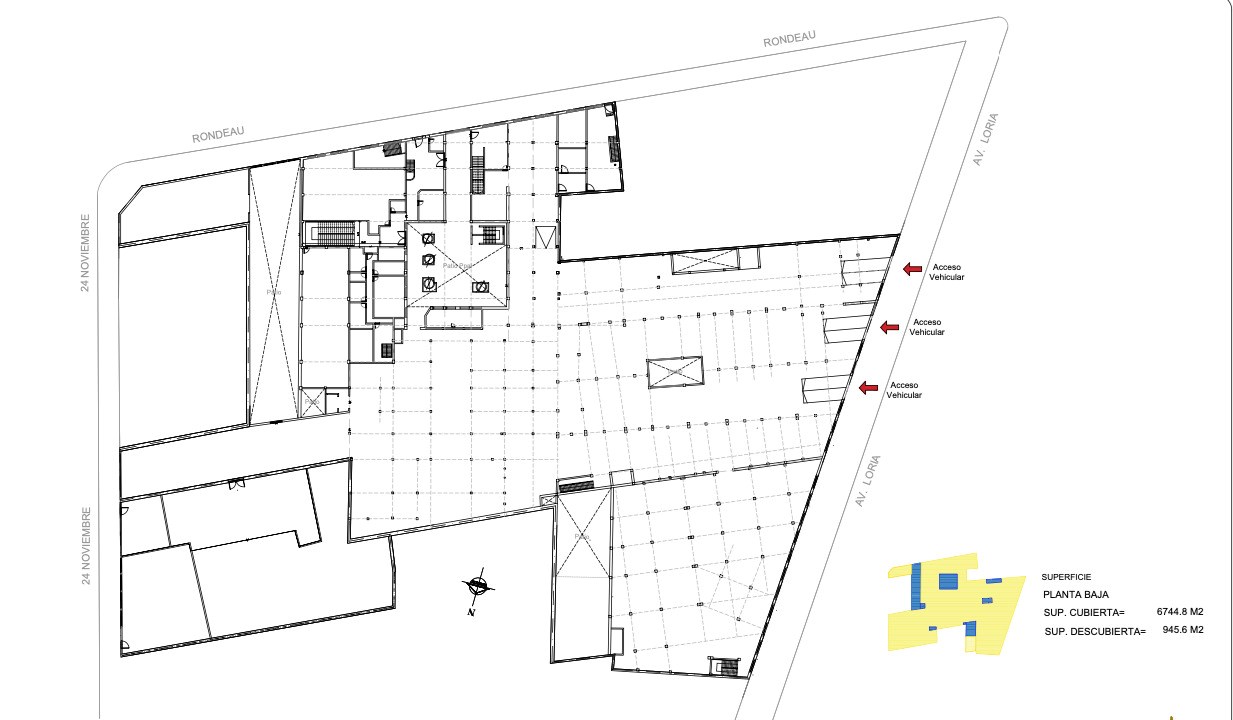
  • Sup. Total 18800,00 m2
  • Sup. Cubierta 16000,00 m2
  • Expensas sin expensas

U$S 85.000

ALQUILER

Sanchez de Loria y Rondeau 1400

Parque Patricios

Espectacular Depósito apto Todo Rubro, casi 20.000 m2 en Parque Patricios. Ideal para Empresas, Importadoras de grandes volúmenes. Salida por 3 calles. Para refaccionar. Precio a convenir con interesados.


DETALLE DE LA PROPIEDAD

Expensas: sin expensas

*Las descripciones arquitectónicas, valores de expensas, impuestos o servicios, fotos y medidas de las propiedades son aproximados. Los datos fueron proporcionados por el propietario y pueden no estar actualizados a la hora de la visualización de este aviso por lo cual pueden arrojar inexactitudes o discordancias con las que surjan de los las facturas, títulos o planos legales del inmueble. Se pondrá a disposición del interesado la documentación necesaria a fin de realizar las verificaciones respectivas previamente a la realización de cualquier operación, requiriendo por sí o sus profesionales la documentación que corresponda.
*Inciso 8 del artículo 10 de la Ley 2340 (texto consolidado según Ley N° 5666). Para los casos de alquiler de vivienda, el monto máximo de comisión que se le puede requerir a los propietarios será el equivalente al cuatro con quince centésimos por ciento (4,15%) del valor total del respectivo contrato. Se encuentra prohibido cobrar a los inquilinos que sean personas físicas comisiones inmobiliarias y gastos de gestoría de informes", segun Art.4 de la Ley 5.859 de C.A.B.A.

PROPIEDADES SIMILARES

DEPÓSITO

Avenida Caseros 2600

Parque Patricios, Capital Federal, Buenos Aires

ALQUILER

U$S 85.000

17800,00 m2
DEPÓSITO

Av. Caseros 2600

Parque Patricios, Capital Federal, Buenos Aires

ALQUILER

U$S 85.000

17800,00 m2
DEPÓSITO

Av. Caseros 2600

Parque Patricios, Capital Federal, Buenos Aires

ALQUILER

U$S 85.000

17800,00 m2
DEPÓSITO

Av. Caseros 2600

Parque Patricios, Capital Federal, Buenos Aires

ALQUILER

U$S 85.000

17800,00 m2
DEPÓSITO GALPÓN

Rondeau 3200

Parque Patricios, Capital Federal, Buenos Aires

ALQUILER

U$S 85.000

18800,00 m2

CONTACTO





Solicitá tu tasación !

Nuestro compromiso es acompañarte y brindarte todo lo necesario para lograr tu objetivo.

BTS Propiedades. COPYRIGHT 2026 CUCICBA 4413

Desarrollado por LiderProp