Sanchez de loria 1200 | BTS2535

FICHA

  • Producto Depósito Galpón
  • Operación Alquiler
  • Barrio San Cristóbal
  • Estado A refaccionar
  • Sup. Total 18800,00 m2

U$S 85.000

ALQUILER

Sanchez de loria 1200

San Cristóbal

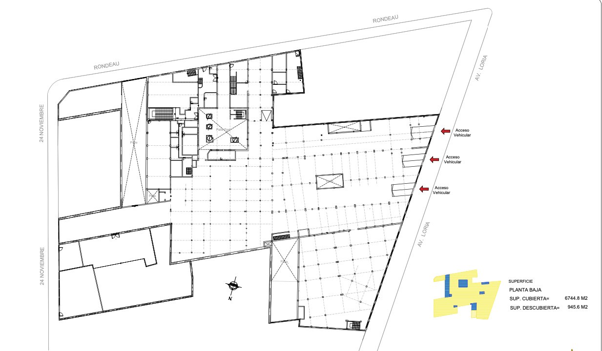
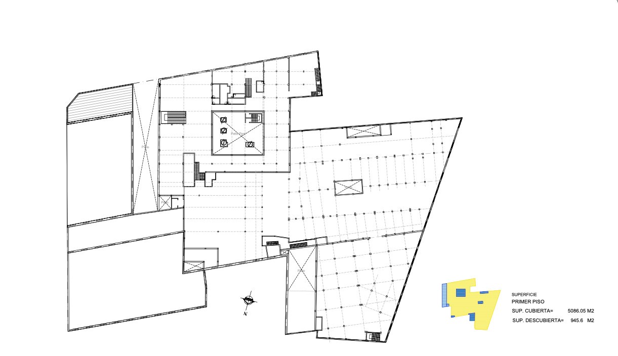
7800 m2 de Superficie de terreno , ex fábrica de papel para refaccionar . 18800m2 con edificio a demoler o recuperar para uso comercial e industrial. Código Urbanistico mixtura de usos 4. Excelente para todo tipo de proyecto: Depósito- Vivienda- Carga y Descarga de Camiones x 3 calles. 5 ( cinco) Salidas aptas para camiones por las 3 calles - Sanchez de Loria, Rondeau y 24 de Noviembre. Ideal para depósitos de todo tipo de mercadería. Se vende en block. Posee anteproyecto para reciclar a un complejo multiespacio comercial con oficinas y centro de distribución. Puede usarse como depósito para reciclar. Oficinas en 1 er piso ó 2do. piso Características generales del complejo : Superficie cubierta total: 19.600 m² - Desarrollo con depósitos en tres niveles - Áreas de oficinas administrativas - Estructura apta para usos comerciales, logísticos, industriales livianos y tecnológicos. Superficies disponibles: Módulos desde 1.000 m² con posibilidad de tomar hasta 18.000 m² - flexibilidad para adaptar superficies según necesidades operativas. Condiciones de alquiler / venta: Superficies a refaccionar: se toma un tipo de dolar. Ideal para empresas de distribución, industrias livianas, depósitos urbanos o sedes corporativas. En el Distrito tecnológico. El Distrito Tecnológico en Parque Patricios (CABA) ofrece importantes beneficios fiscales y desgravación impositiva a las empresas de tecnologías de la información y comunicación (TIC) radicadas allí hasta 2035. Incluye exención del 100% de Ingresos Brutos, exención de Impuesto de Sellos, Inmobiliario y ABL para los inmuebles de empresas inscriptas, además de créditos fiscales.


DETALLE DE LA PROPIEDAD

Zonificación: Mixt. 4

*Las descripciones arquitectónicas, valores de expensas, impuestos o servicios, fotos y medidas de las propiedades son aproximados. Los datos fueron proporcionados por el propietario y pueden no estar actualizados a la hora de la visualización de este aviso por lo cual pueden arrojar inexactitudes o discordancias con las que surjan de los las facturas, títulos o planos legales del inmueble. Se pondrá a disposición del interesado la documentación necesaria a fin de realizar las verificaciones respectivas previamente a la realización de cualquier operación, requiriendo por sí o sus profesionales la documentación que corresponda.
*Inciso 8 del artículo 10 de la Ley 2340 (texto consolidado según Ley N° 5666). Para los casos de alquiler de vivienda, el monto máximo de comisión que se le puede requerir a los propietarios será el equivalente al cuatro con quince centésimos por ciento (4,15%) del valor total del respectivo contrato. Se encuentra prohibido cobrar a los inquilinos que sean personas físicas comisiones inmobiliarias y gastos de gestoría de informes", segun Art.4 de la Ley 5.859 de C.A.B.A.

PROPIEDADES SIMILARES

DEPÓSITO GALPÓN

Rondeau 3200

San Cristóbal, Capital Federal, Buenos Aires

ALQUILER

U$S 85.000

18800,00 m2

CONTACTO





Solicitá tu tasación !

Nuestro compromiso es acompañarte y brindarte todo lo necesario para lograr tu objetivo.

BTS Propiedades. COPYRIGHT 2026 CUCICBA 4413

Desarrollado por LiderProp